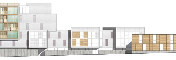
Construction de 36 Logements sociaux et un foyer pour jeunes adultes handicapés mentaux ZAC BOTTIERE CHENAIE – NANTES (44)
Vue d'ensemble
Maître d’ouvrage : Nantes Habitat (44)
Architecte : AMELLER ET DUBOIS (75)
Surface SHON : 4 800 m²
Coût des travaux H.T. : 5 600 000 €
Livraison : 2013


